Creepy and disturbing

Started by Arcdelad, March 20, 2009, 07:03:14 AM

Previous topic - Next topic

0 Members and 1 Guest are viewing this topic.

Arcdelad

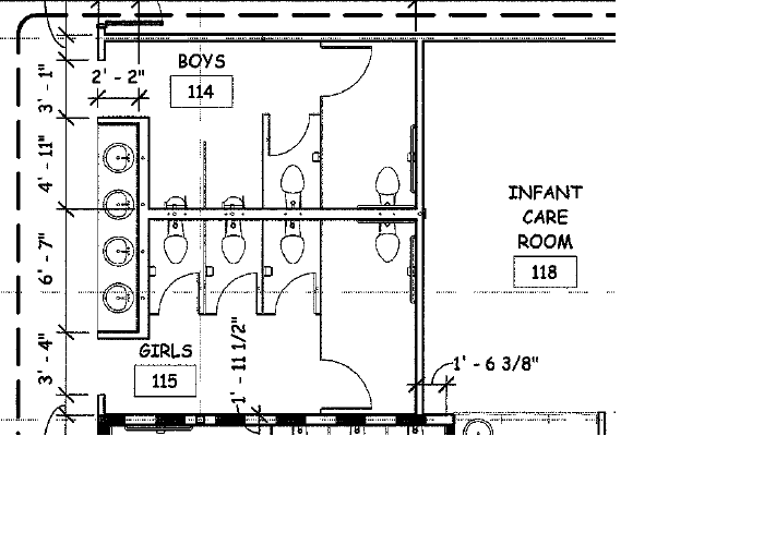
the following image is from a church i am working on in New Jersey...who else sees what is missing from the kid's bathrooms?

Tony

The priests peep hole???

(Sorry, I have an extreme anger for some people that are churchy)

I dont really see anything out of the ordinary except for the lack of doors on the entrance, but I would have to see the rest of the building layout.

Arcdelad

there are NO doors going into the kid's restrooms....if a kid is young, the parent or teacher will usually take the kid to the bathroom...when they are older, they go by themselves - so why leave easy viewing access to little kids going to the bathroom?

blech....and its in what looks like will be a busy corridor...

Tony

Again, I will refrain from saying anything because of some anger issues I have and fear of offending... But yea, that's not a good idea...

Shadowwolf

Well...I can see why that would be done that way. Safety for one, they may not want to run the risk of the door being blockaded by unruly misbehaving kids. The problem is that main wall where the entry door is doesnt extend out far enough to prevent peeping in from the hallway which is what I dont like.

Theres a lot of public restrooms in places like Airports and Rest Stations that dont have entry doors, but the stalls and whatnot are not viewable from the outside hallways due to an extending wall, or some other obstacle that prevents it.
Come to the darkside, we have cookies.
"A flute with no holes is not a flute, and a donut with no hole is a danish" - Chevy Chase as Ty Webb in Caddyshack
"Be who you are and say what you feel, because those who mind don't matter, and those who matter don't mind."- Dr. Suess


dharq

Call me naive, but I don't really see anything that creepy about it. It reminds me of the bathrooms we had in public schools growing up. The sinks are on one side of a wall, the toilets are all on the other, the partitions should block LoS issues from the outside hallway. Based on the measurements indicated, the partition separating the urinals appears to be about 3'-4' long... So it's not like someone's going to be exposed unless they're trying to be. Furthermore, I have to believe there's a wall on the opposite side across from the sinks that separates them from the adjoining room/hallway because of health codes... There is also no room in the plan for paper dispensers/dryer units/waste, and I can't imagine any way for those items to be placed safely and according to codes short of having a wall opposite the sinks.

As for the anger issues, people come across their beliefs and lifestyles typically because of events and choices in their own lives. True socio- and psychopaths occur in any and all of those systems, and the misbehavior of the individual does not reflect upon the belief itself in most cases. My advice is to judge the person, and not the system they follow (or profess to follow).


Kothnok

> Safety for one...
In an era where perceived safety is very important, I tend to concur with that assessment of why no doors were designed for the restrooms.  A teacher/guardian can escort the child to the appropriate side and visually inspect it without having to go inside.  It could cut down on the incidents for smoking, fighting and other inappropriate behavior.  Matters like this were discussed at the elementary school I attended to decide on perma-locked doors vs. door-less entries when we had an incident where some guy waited in the girl's bathroom during class time and tried to abduct a lone girl that entered. My teacher at the time, Mr. Klinely, was called over the intercom and we got to watch him run the guy down and save the girl before he got off school grounds.  It was awesome to witness, but I digress.

While safety is important, and commendable, I would like to point out something on the practical side.  Nauseous as well as gastrointestinally loud kids will also use these bathrooms.  Noise pollution, not to mention the wonderful aroma that can be present may be something worth considering having a door of some kind or will be cleaned often.  If you really need to see in, put a window in the door. You can even have it swing both ways if you're that concerned about blocked doors.

While I don't think the design is creepy, I do think that more than a few little kids may be intimidated or embarrassed by using it, which I think is more of Arc's original point.
No matter how often you refill the gene pool, there's always a shallow end.

Tony

Quote from: dharq on March 20, 2009, 08:52:08 AM

As for the anger issues, people come across their beliefs and lifestyles typically because of events and choices in their own lives. True socio- and psychopaths occur in any and all of those systems, and the misbehavior of the individual does not reflect upon the belief itself in most cases. My advice is to judge the person, and not the system they follow (or profess to follow).

Are you callin me a psyco???

:-O

dharq

Oh no, definitely not. I think you're pretty cool from the short time we've known one another... I'm just saying in general that all walks of life and belief produce crazies who prey upon others (pun fully intended in this case).

I guess my point is not to mentally limit yourself by visceral reaction to religion or belief. :D There's a huge spectrum of beliefs and lifestyles in this very guild, and it's always amazing to me to see how everyone gets along and works together in spite of what would have been considered irreconcilable differences in belief or lifestyle 100 years ago. Shoot, even as little as 30 years ago in many cases.

I think all beliefs and lifestyles have adherents who truly try to do good for those around them, and all of them have adherents who try to use those beliefs or lifestyles to demand or command or control those around them as well. The bad apples shouldn't reflect on the good just because they share some thought patterns, imo. :D

(Sorry to have digressed into a philosophy discussion. I'll stop now since I could go on for hours about this kinda thing. :D)


Arcdelad

agreed..i wrote a blog on our site about the subject darq...i agree with ya!

koth - the smell shouldnt be TOO bad...they do have a 100 CFM exhaust fan in each restroom hehehe

Tony

Quote from: dharq on March 20, 2009, 10:04:16 AM
Oh no, definitely not....

Totally dude, I knew what you were saying, I was just trying to turn a potentially very serious discussion into something a little humorous. I am glad that I as a human have the free will to chose to follow whatever I chose, and at the same time co-exist with others around me.

Arcdelad


dharq

Quote from: Diseous on March 20, 2009, 10:36:44 AM
Quote from: dharq on March 20, 2009, 10:04:16 AM
Oh no, definitely not....

Totally dude, I knew what you were saying, I was just trying to turn a potentially very serious discussion into something a little humorous. I am glad that I as a human have the free will to chose to follow whatever I chose, and at the same time co-exist with others around me.

Exactly!  Freedom to choose who we are and what we believe is so central to our very beings... but it's only freedom if -everyone- has the ability to believe whatever they choose. Even the FSM. :D


fiere redfern

Have YOU been Touched by his Noodley Appendage?  ;)

dharq

Not yet, but I'm fully prepared to touch back. :D

Although depending on my feeding habits for the day, I may very well use FSM to satisfy my raging hunger.  ]:D